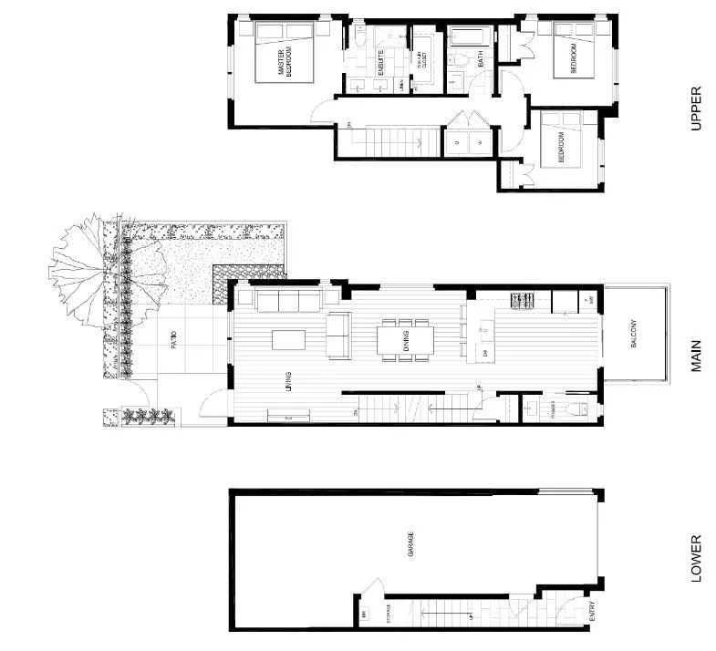
Property Type
Townhome, 3 Storey
Parking
2 garage, 2 parking
MLS #
R3046117
Size
1361 sqft
Basement
None
Listed on
-
Lot size
-
Tax
$4,502.46 /yr
Days on Market
-
Year Built
2020
Maintenance Fee
$328.90 /mo